Обяви 0 За нас Контакти
Продава КЪЩА
град Пловдив, Беломорски
249 000 €
487 001.67 лв.

(1 556 €, 3 043.27 лв./m2)
Цената е с включено ДДС
История на цената
Коригирана в 11:48 на 10 февруари, 2026 год.
Обявата е посетена 3610 пъти.
Площ:
160 m2
Двор:
110 m2
Строителство:
Тухла, Ще бъде въведен в експлоатация 2026 г.

Описание на имота:


Нови модерни къщи в Беломорски зелено пространство и комфорт в града.
Представяме Ви нов жилищен проект в кв. Беломорски, Пловдив комплекс от модерни къщи с отлична локация, функционални разпределения и съвременен екстериор. Идеален избор за хора, търсещи комфорт, пространство и спокойствие без да се отказват от удобствата на града.
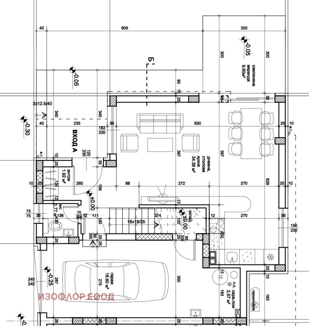
-Разпределение: 3 спални, 2 бани, дневна с кухня, перално помещение, веранда, гараж и паркомясто,помещение за съхранение.
Енергийна ефективност и устойчивост:

✅ Подготвени инсталации за термопомпа
Всеки имот е с изградени трасета и всички необходими връзки за монтаж на термопомпа. Това позволява на собствениците да се възползват от модерен и икономичен начин за отопление и охлаждане още от самото начало.
🔸 Предимства:
Ниско застрояване, без натоварен трафик
Частни дворове
Опция за довършване по избор на клиента
Ново строителство, високо качество
Отлична инвестиция с растяща стойност
🔸 Локация:

Кв. Беломорски южната част на Пловдив, бърз достъп до центъра и околовръстното, спокойна зона, нови къщи наоколо, чист въздух. В близост до училища, магазини и градски транспорт.
🔸 Тип строителство:

🏡 Къщи тип близнаци по две в сграда, всяка със самостоятелен вход, двор и паркоместа.

Особености
Тухла
С гараж
С паркинг
Лизинг
За контакт:
0895747296
Инвеститор:
ИЗОФЛОР ЕООД
0895747296
Медал за прослужено време
В imot.bg от 2018 г.
izoflor.imot.bg
Адрес:
област Пловдив, гр. Пловдив, Оборище 8
http://izoflor.bg
ИЗПРАТИ ЗАПИТВАНЕ
ИЗПРАТИ ЗАПИТВАНЕТО

Продава КЪЩА
град Пловдив, Беломорски
Обява: 1j175438192892537

249 000 €
487 001.67 лв.
История на цената
(1 556 €, 3 043.27 лв./m2)

Цената е с включено ДДС
ЗАПАЗИ ОБЯВАТА

Местоположение: град Пловдив, Беломорски

Допълнителни данни за имотите в района и сравнение с други райони

Покажи

Период

и 5 месеца

* Средните цени са определени чрез медианна стойност